Lista annunci
Visualizza foto
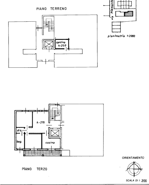
Planimetria
TRILOCALE SERVITO DA ASCENSORE
via piemonte 5 - San Secondo Parmense
€ 148.000
90
m²
1
Bagno
3
Locali
Descrizione
SAN SECONDO - All’ultimo piano si vive sempre meglio… più luce, più tranquillità e quella piacevole sensazione di essere un passo sopra il resto. Questo appartamento, situato al terzo ed ultimo piano di una palazzina servita da ascensore, unisce comfort e praticità in un contesto curato e nelle immediate vicinanze di un parco verde.
L’ingresso accompagna verso un accogliente soggiorno, uno spazio ideale da vivere ogni giorno, mentre la cucina abitabile, ampia e funzionale, si affaccia su un balcone che collega anche una delle due camere matrimoniali, un dettaglio che rende gli ambienti ancora più ariosi e luminosi.
La disposizione interna è ben studiata, un comodo disimpegno separa la zona giorno dalla zona notte, garantendo privacy e tranquillità. Qui troviamo due spaziose camere matrimoniali e un bagno completo sia di vasca che di doccia, pensato per soddisfare ogni esigenza.
Completano la proprietà una cantina e un garage, elementi sempre più preziosi nella vita quotidiana.
Una soluzione ideale per chi cerca ambienti generosi, una buona distribuzione degli spazi e la comodità di avere il verde a due passi, senza rinunciare ai servizi. Una casa pronta da vivere e da personalizzare secondo il proprio stile.
Per informazioni e visite contattare il nostro ufficio di San Secondo al 0521 375478.
Caratteristiche
Tipologia:
Appartamento
Superficie:
90 m²
Classe energetica:
E
Numero locali:
3
Numero bagni:
1
Box auto:
Presente
Condizioni:
Buono
Cantina:
Non presente
Anno di costruzione:
2000





















