Lista annunci
Visualizza foto
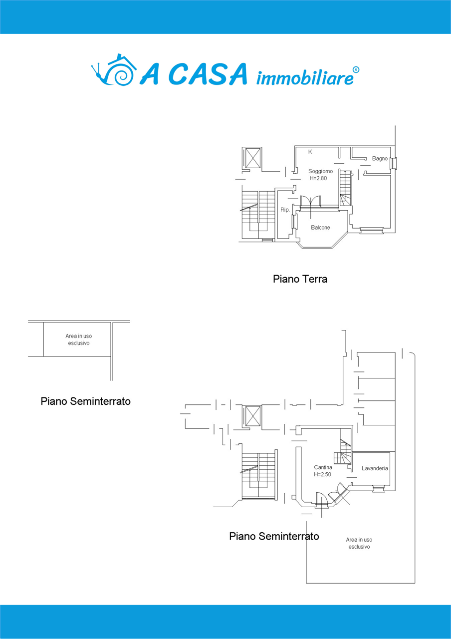
Planimetria
TRILOCALE CON SPLENDIDO GIARDINO
Strada Privata Campazzo 1 - Collecchio
€ 172.000
80
m²
1
Bagno
3
Locali
Descrizione
Stai cercando un appartamento con un meraviglioso giardino??
Cerchi tutto questo in un contesto di recente costruzione??
FERMATI!! Abbiamo quello che fa per te.
A CASA Immobiliare di Felino propone in vendita esclusiva splendido Trilocale posto in recente contesto condominiale.
La casa è composta da ingresso indipendente nello splendido giardino privato, si accede poi al piano giorno dove troviamo l'ampio e luminoso soggiorno e la cucina abitabile. Tramite scala interna in legno si accede al piano notte dove troviamo le due camere matrimoniali di cui una con cabina armadio e godibile loggia ed il bagno con box doccia.
La soluzione è inoltre arricchita da Garage e posto auto di proprietà.
CHIAMA SUBITO e non lasciarti sfuggire questa OCCASIONE.
Per informazioni e visite contattare il nostro ufficio di Felino al numero 0521.684828 oppure il 347.60.73.691
Caratteristiche
Tipologia:
Appartamento
Superficie:
80 m²
Classe energetica:
VA
Numero locali:
3
Numero bagni:
1
Box auto:
Presente
Condizioni:
Ottimo
Esposizione:
Sud Ovest
Giardino:
Privato
Cantina:
Non presente
Anno di costruzione:
2005



























